
| 温度 | -40℃~+85℃ |
| 相对湿度 | 5%~95% |
| 海拔高度 | -500m~+4000m |
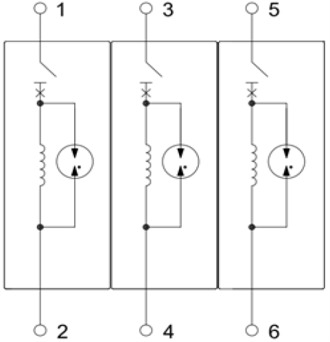
| 型号 | ZGSSD25T-1HY | ZGSSD25T-2HY | ZGSSD25T-3HY | ZGSSD25T-4HY |
| SSD 根据 NB/T 42150 | Class Ⅰ、Class Ⅱ | |||
| 额定工作电压 Ue | 230/400 V AC | |||
| 工作频率 | 50/60 Hz | |||
| 额定绝缘电压 Ui | 690 V AC | |||
| 标称放电电流 In (8/20 μs) |
25 kA | |||
| 冲击放电电 Iimp (10/350 μs) |
25 kA | |||
| 电压保护水平 Up | 1.5 kV | |||
| 最小瞬时动作电流 Ii | 5 A | |||
| 最小延时动作电流 Id | ![]() |
|||
| 额定短路能力 Icn | 100 kA | |||
| 极数 | 1P | 2P | 3P | 4P |
| 接线端子连接铜导线的截面积 | 软线:1.5 mm2~25 mm2,硬线:1.5 mm2~35 mm2 | |||
| 遥信接线端子连接铜导线的截面积 | 0.5 mm2~1.5 mm2 | |||
| 遥信报警触点强度 | AC:250 V/0.5 A,125 V/1 A;DC:30 V/0.1 A | |||
| 扭矩:接线端子/遥信接口 | 2.5 N•m /0.25 N•m | |||
| 应用系统 | TN、TT | |||
| 安装形式 | 35 mm 导轨 (TH 35 型,根据 IEC/EN 60715) | |||
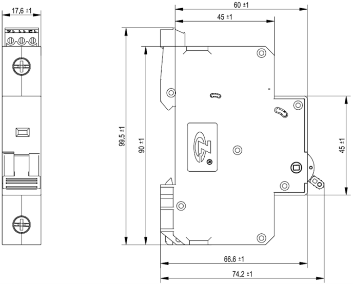
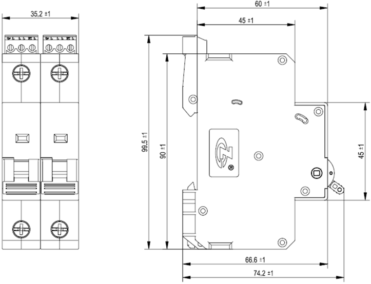
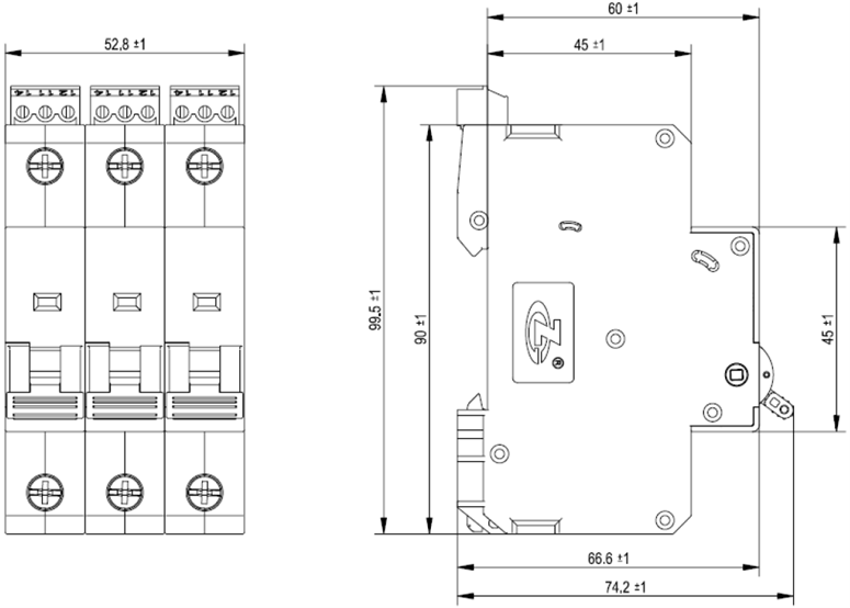
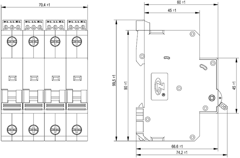
| 外型尺寸 | 90 mm×17.6 mm×74.2 mm(不包含遥信尺寸) | 90 mm×35.2 mm×74.2 mm(不包含遥信尺寸) | 90 mm×52.8 mm×74.2 mm(不包含遥信尺寸) | 90 mm×70.4 mm×74.2 mm(不包含遥信尺寸) |
| 外壳防护等级 | IP20 | |||
| 外壳阻燃等级 | UL 94 V-0 | |||








赌博平台大全
bbin官网app下载
十大正规买球网站
皇冠体育app下载
世界杯博彩网站